My WS Wishlist 0
Back to results

Unit 2, Newcombe House, Rosemount Estates, Elland, HX5 0EE

Photo of Unit 2, Newcombe House, Rosemount Estates, Elland, HX5 0EE
Photo of Unit 2, Newcombe House, Rosemount Estates, Elland, HX5 0EE
Photo of Unit 2, Newcombe House, Rosemount Estates, Elland, HX5 0EE
Photo of Unit 2, Newcombe House, Rosemount Estates, Elland, HX5 0EE
Photo of Unit 2, Newcombe House, Rosemount Estates, Elland, HX5 0EE
Photo of Unit 2, Newcombe House, Rosemount Estates, Elland, HX5 0EE
To Let

To Let

£20,000 Per Annum
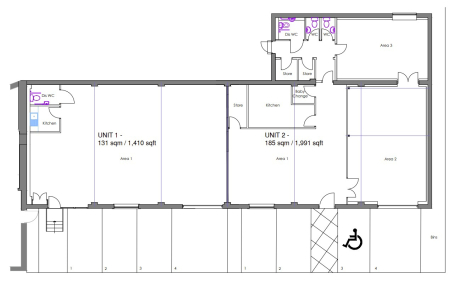
1991 Sq Ft | Ref: 104041

Office, Industrial, Retail

Arrange a viewing Download brochure

For further information and viewing arrangements please contact:

Property details

  • Accessible Ground Floor Unit
  • 1,991 Sq Ft (184.96 Sq M)
  • Suitable For A Variety Of Uses Falling Under Use Class E
  • Designated Parking
  • Scope for installation of roller shutter

The property comprises a single storey ground floor unit situated on Rosemount Estate with access from Newcombe Street, Elland. The property is well presented and has the benefit of having open plan accommodation on entering with two separate meeting rooms/offices, large kitchen, relevant WC facilities to include a separate disabled WC, baby change and ancillary stores. Heating is provided by way of gas central heating. Externally there are 4 parking bays which includes 1 disabled parking bay, with further parking available on the adjoining Rosemount Estate by agreement. The property has planning permission for uses falling under Use Class E (c-g). Rosemount Estate Rosemount Estate is a secure well-regarded, privately owned and managed industrial estate and is home to a range of industrial, manufacturing and office tenants. The Estate is within walking distance of Elland town centre where a range of amenities are available. Please see www.rosemountestates.co.uk for further information and details of other available properties. Mains services connected to the premises include electricity, gas, water and drainage. Please note these services have not been tried or tested and any interested parties are advised to satisfy themselves as to suitability and condition.

Location

The property is accessed from Newcombe Street and is situated on Rosemount Estate, a highly accessible employment site close to Elland Town Centre being well positioned to accommodate local and national businesses in an extremely prominent location off the B6114, one mile from junction 24 of the M62 between Huddersfield and Halifax. Leeds City Centre is approximately 15 miles distant with Manchester City Centre being within 25 miles distant.

EPC

He property will be re-assessed on completion of roofing works.

VAT

The rentals quoted are exclusive of VAT (if applicable)

Terms

The property is available To Let by way of a new Full Repairing and Insuring lease of a term to be agreed.

Rates

The property will need reassessing for business rates purposes

Viewing:

For further information or should you wish to arrange a viewing, please contact the sole letting agents:

Arrange a viewing

Unit 2, Newcombe House, Rosemount Estates, Elland, HX5 0EE